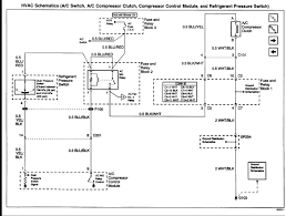
2002 Chevy Prizm Ac Compressor. I could hear the compreressor making noise when I turned it on. Helps maintain a desired temperature inside your car Made of durable materials.

Helps maintain a desired temperature inside your car Made of durable materials. Chevrolet refrigerant and oil capacity charts. Free shipping on many items Browse your favorite brands affordable prices.
2002 2001 2000 1999 1998 02 01 00 99 98.
It stopped again yesterday morning but worked later that afternoon. Specializing in Automotive Air Conditioning Components 877723-0112. This AC Compressor and Components Kit is manufactured and tested to the strictest OE standards for unparalleled performance. 2002 Chevy Prizm AC compressors and replacement parts will let you maintain your AC system in any weather conditions.